S Juan de Dios I - Grupo Astilleros Construcciones
Vaya al Contenido
Menu Principal
Inicio
Quienes somos
Líneas de Negocio
Construcción
Rehabilitación
Reformas
Obra Pública Civil
Ascensores
Ahorro Energético
Mantenimiento Comunidades
Promociones e Inmobiliaria
Donde Estamos
Nuestras Empresas
Astilleros Construcciones, SL
Astilleros e Hijos, SL
Reacon, SL
Nuestros Trabajos
Construcción
Construcciones
Calle Tendillas
Barrio Antequeruela
Rehabilitación
Rehabilitaciones
Cuesta del Corchete
Plaza de las Capuchinas
Promociones
Promociones
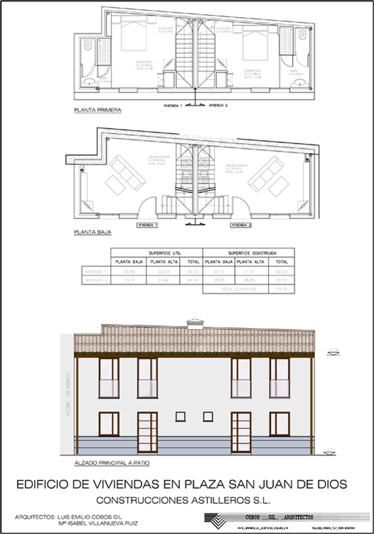
S Juan de Dios I
S Juan de Dios II
Argés
Chalets
Inmobiliaria
Pedir Presupuesto
S Juan de Dios I
Nuestros Trabajos > Promociones
Inicio
|
Quienes somos
|
Líneas de Negocio
|
Donde Estamos
|
Nuestras Empresas
|
Nuestros Trabajos
|
Pedir Presupuesto
|
Mapa general del sitio
Regreso al contenido
|
Regreso al menu principal